СВЯЗЬ ВРЕМЁН
СТУДИЯ АРХИТЕКТОРА БОТНАРЯ ГЕННАДИЯ
ГЛАВНАЯ
КОНТАКТЫ
О НАС
ГОТОВЫЕ ПРОЕКТЫ
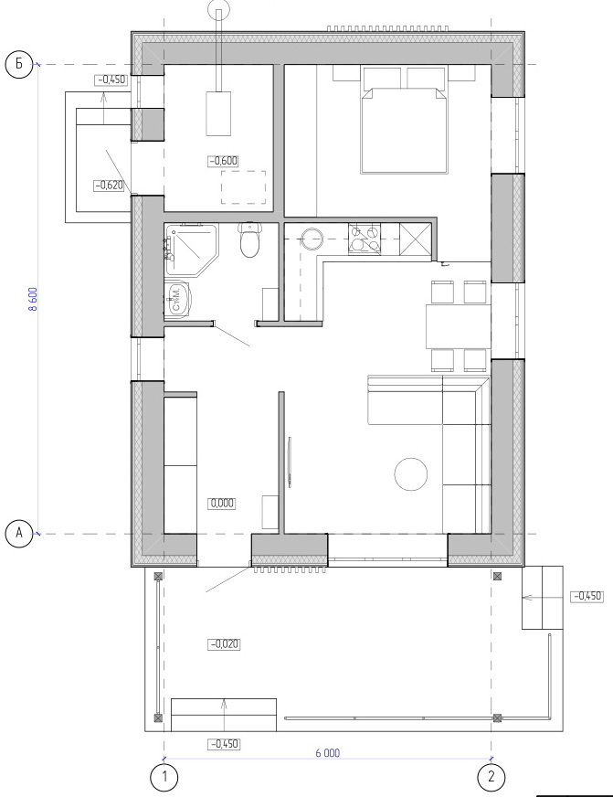
ТД 10 БШ
Одноэтажный индивидуальный жилой дом.
Общая площадь -
Жилая площадь -
Спальня - 1
Стены - блоки из легкого бетона
Фасад - декоративная штукатурка по утеплителю
Кровля - металлочерепица
ОДНОЭТАЖНЫЙ ЖИЛОЙ ДОМ
Made on
Tilda